Drissner Immobilien
Drissner Immobilien

Kaufobjekte: Wohnungen

Hier finden Sie eine Auswahl unserer derzeit angebotenen Wohnungen.

Diese nachfolgende Wohnung wurde bereits erfolgreich vermittelt!

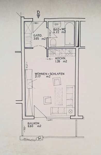
1-Zi-Whg in 6971 Hard,        Landstraße 80

Lage:                              Diese adrette Wohnung befindet sich im 1.OG einer Wohnanlage und ist nach Osten ausgerichtet. Die Infrastruktur ist sehr gut. Direkt vor dem Haus befindet sich eine Busstation. Ein Lebensmittelmarkt ist nur ca. 100 m entfernt.

 

Objekt:                        Die Anlage wurde im Jahre 1978 in Massivbauweise errichtet. Ein Lift ist vorhanden. Sie wird zentral mit Gas beheizt. Die Warmwasseraufbereitung erfolgt ebenfalls über die Gastherme. Allgemeine Parkplätze sind ausreichend vorhanden.

Innen ist die Wohnung mit Laminatböden ausgestattet. Das Bad ist verfliest und verfügt über eine Dusche.

Derzeit dient ein großer Kleiderschrank als Raumteiler. Dieser könnte jedoch leicht entfernt werden, falls gewünscht.

Die kleine Küche ist sehr funktionell und mit einem Geschirrspüler ausgestattet. 

 

 

Flächen:                     Wohnfläche:                           30,43 m2
Balkon:                                     6,60 m2
Keller:                                       2,30 m2

 

Kaufpreis:                     € 150.000,-- 

 

BK:                                 € 159,-- (inkl. € 31,52 Rep.fonds)

 

Nebenkosten:               3,5 % Grunderwerbssteuer

                                   1,1 % Eintragungsgebühr Grundbuch

                                   3,6 % Maklerhonorar (inkl. 20% Ust)

                                   zzgl. Rechtsanwaltskosten (Vertrag u. Treuhandschaft)

                           

Besichtigung:              Ich bitte um vorherige Terminvereinbarung.  

 

HWB:                         48 kwH/m2a

Diese nachfolgende Wohnung wurde bereits erfolgreich vermittelt!

2-Zi-Wohnung im Stadtzentrum, Jahnstraße 18, Bregenz

 

Lage:                           Diese schöne Wohnung befindet sich im Stadtzentrum von Bregenz mit bester Infrastruktur. Zum See sind es nur wenige Gehminuten.
 

Objekt:                      Die Wohnanlage wurde gem. Energieausweis im Jahre 1958 in Massivbauweise errichtet. 

Die Wohnung selbst liegt im 3.OG und ist nach Westen gerichtet. Ein Lift ist nicht vorhanden.

Sie besticht unter anderem durch den sehr großzügigen Grundriss. Vor allem die große Wohnküche lädt zum Verweilen ein.

Als Beheizung dient eine zentrale Gasfeuerung.

Das Inventar wird mitveräußert.

Auf Grund der Lage ist die Wohnung auch bestens zur Vermietung an Touristen geeignet.

 

 

Flächen:                      Wfl:        62,32 m2 
Balkon:    4,77 m2

Keller:      4,75 m2 

 

Kaufpreis:                    € 259.000,--
      

Betriebskosten:           € 174,89 zzgl. € 61,-- monatliche Rücklage

                                 

Nebenkosten:              3,5 % Grunderwerbssteuer

                                      1,1 % Eintragungsgebühr Grundbuch

                                      3,6 % Maklerhonorar (inkl. 20% Ust)

                                      zzgl. Rechtsanwaltskosten (Vertrag u. Treuhandschaft)

                           

Besichtigung:             Ich ersuche um vorherige Terminvereinbarung.
 

 

HWB:                           50 kwH/m2a

 

Grundriss.pdf
PDF-Dokument [770.0 KB]
Ihre Formularnachricht wurde erfolgreich versendet.
Sie haben folgende Daten eingegeben:

Kontaktformular

Bitte korrigieren Sie Ihre Eingaben in den folgenden Feldern:
Beim Versenden des Formulars ist ein Fehler aufgetreten. Bitte versuchen Sie es später noch einmal.

Hinweis: Felder, die mit * bezeichnet sind, sind Pflichtfelder.

Zu unseren Objekten

Sie haben Fragen?

Wenden Sie sich direkt an uns:

 

+43 650 341 0230

 

Oder nutzen Sie unser Kontaktformular.

Druckversion | Sitemap
© Drissner Immobilien